Skövde

Frostagårdsvägen 3

Med ett lugnt läge på återvändsgata ligger denna mycket välskötta sluttningsvilla från 1991. Generösa ytor såväl inne som på den välplanerade tomten som genom sitt fina läge mot grönområde och rätt väderstreck ger fin sol hela dagen samt kvällen. I närområdet finns såväl förskola som skola och fina sportanläggningar mm.

Snabbfakta

Typ Friliggande villa
Rum 7 rok
Boarea 188 + 24 kvm
Tomtarea 980 kvm
Byggår 1991
Mer fakta
Utgångspris
5 885 000 kr

Visning

21 Januari
Kontakta mäklaren för enskild tidsbokad visning
Ansvarig mäklare

Mats Forsberg

Fastighetsmäklare
0500-480280 [email protected]

Hus/Tomt

En mycket välskött sluttningsvilla från Sjödalshus med stora generösa ytor och möjlighet till ända upp till 5 rymliga sovrum. Tomten har ett fint läge med stor integritet på baksidan mot park/grönområdet. Lättskött tomt med mycket stensättningar och murar.

Hus/Tomt Hus/Tomt Hus/Tomt Hus/Tomt Hus/Tomt Hus/Tomt

Hall

Välkommen in i entrén med kapprum och gott om förvaring, vidare i hallen som öppnar upp sig med vardagsrum och kök till vänster och sovavdelning till höger.

Hall
Hall Hall Hall Hall Hall

Kök

Ett rymligt och gediget kök med matplats i burspråket mot gatan. Solida kvalitéer med massiva ekluckor och mycket granit i bänkskivor. Köket är från 2006.

Kök
Kök Kök Kök Kök Kök Kök Kök Kök Kök Kök Kök Kök

Vardagsrum

Vidare från köket i en öppen planlösning ligger vardagsrummet med eldstad samt utgång till det inglasade stora uterummet som används som sällskapsyta stor del av året.

Vardagsrum
Vardagsrum Vardagsrum Vardagsrum Vardagsrum Vardagsrum Vardagsrum Vardagsrum Vardagsrum Vardagsrum

Badrum/WC

Badrum 1 ligger i anslutning till hallen i entréplanet och är generöst med dubbla tvättställ, duschkabin, wc, kakel, klinker och golvvärme. Badrum 2 ligger i sluttningsplanet och är även det helkaklat och har stort bubbelbadkar, duschkabin, tvättställskommod och wc samt golvvärme. Båda våtrummen har ytskikt från byggåret men känns väldigt fräscha.
Tvättstuga i sluttningsplanet med tvättstugeinredning, tvättmaskin och tumlare.

Badrum/WC
Badrum/WC Badrum/WC Badrum/WC Badrum/WC Badrum/WC Badrum/WC Badrum/WC Badrum/WC

Sovrum

Huset har totalt 5 sovrum varav 2 i entréplanet där det stora föräldrasovrummet har utgång till terrassen/uterummet. 3 generösa sovrum i sluttningsplanet varav alla 3 fungerar att ha dubbelsäng i.

Sovrum
Sovrum Sovrum Sovrum Sovrum Sovrum

Allrum

När man kommer ner för trappan till sluttningsvåningen möts man av ett luftigt allrum med utgång till trädgården. Vidare i detta plan ligger 3 sovrum, badrum, tvättstuga samt förrådsutrymmen och ett litet gym.

Allrum
Allrum Allrum Allrum

Terrass/Uteplats

I övre plan har man byggt in den stora terrassen till ett härligt uterum vilket gör det användbart stora delar av året. På baksidan finns en stensatt stor terrass på gaveln samt en avdelning som sträcker sig under uterummet vilket gör att den är under tak. På framsidan finns även en liten stensatt terrass för morgonkaffet.

Terrass/Uteplats
Terrass/Uteplats Terrass/Uteplats Terrass/Uteplats Terrass/Uteplats Terrass/Uteplats

Garage

I huset finns ett varmgarage för en bil. Under detta garage finns även ett förråd med ingång från huset med bl a matkällare samt ett grovförråd med entré utifrån på baksidan för gräsklippare, ved mm.

Garage

Omgivning

Ett av Skövdes fina villaområden som är lugnt och barnvänligt med närhet till sportanläggningar, KSS samt Elins esplanads handelsområde. Området har även nära till skolor och förskolor.

Omgivning
Omgivning Omgivning Omgivning Omgivning Omgivning

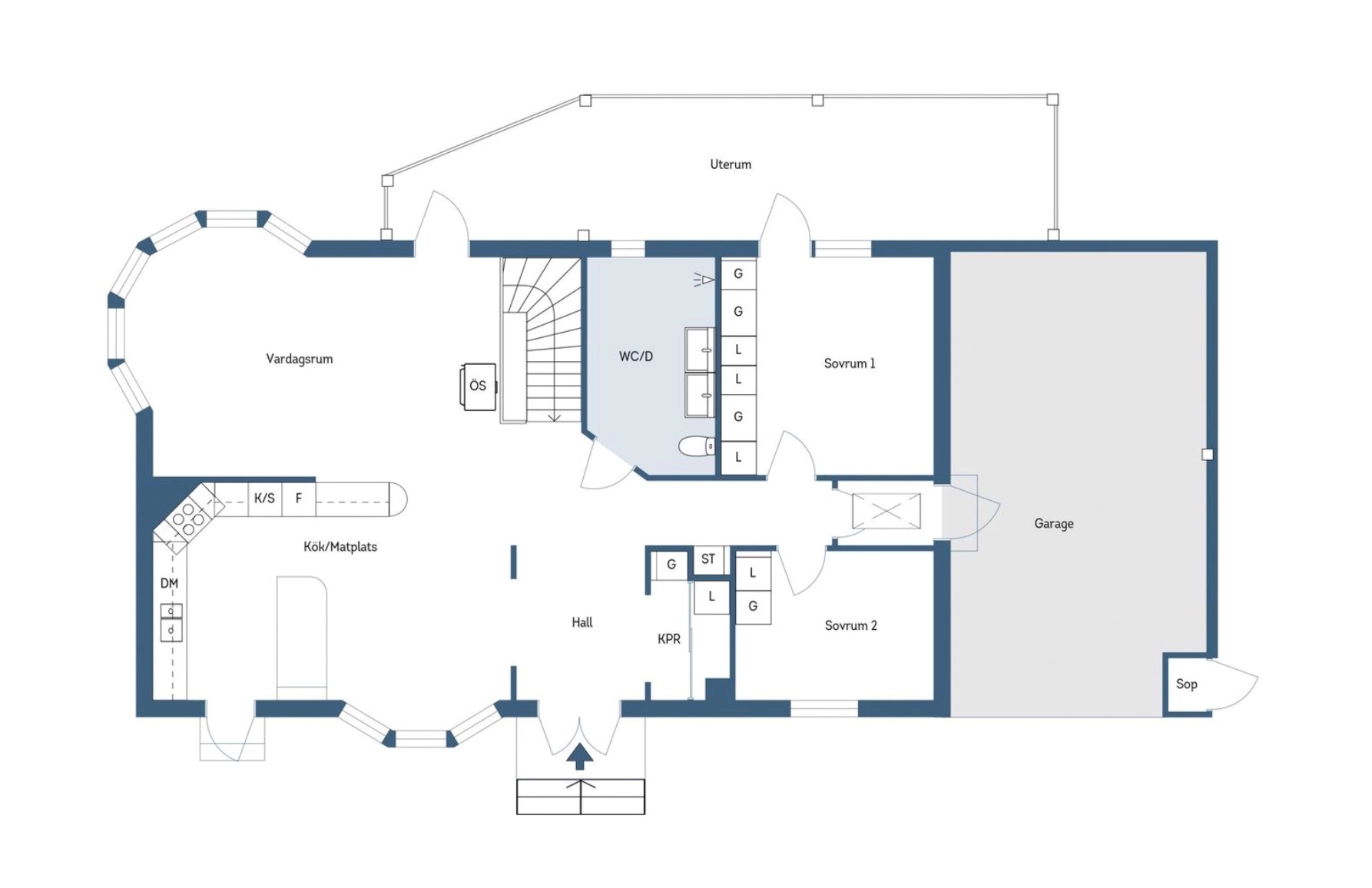
Planritning

Fakta

Bostaden

Boarea/biarea
188/24 kvm
Antal rum
7 rum & kök, varav 5 sovrum
Areakälla
taxeringsinformation
Upplåtelseform
Friköpt
Bostadstyp
Friliggande villa
Elleverantör
Skellefteå kraft
Bredband
Fiber via Telia

Byggnad

Byggnadstyp
1-plansvilla med souterrainvåning
Byggnadsår
1991
Fast.beteckning
Stenröset 4
Ventilation
Mekanisk till och frånluft med återvinning FTX
Vatten/avlopp
Kommunalt anslutet vatten och avlopp
Uppvärmning
Fjärrvärme (ny 2019) samt eldstad
Byggnadssätt
Fasad
Träpanel
Stomme
Trästomme
Fönster
3 glas
Bjälklag
Trä
Plåtarbete
Lackerad plåt
Grundmur
Leca sten
Tak
Betongpannor/Plåttak
Grund
Betongplatta

Tomt

Area
980 kvm

Ekonomi

Driftkostnader
Baserat på 2 st personer i hushållet.
Uppvärmning
16 292 kr/år
Hushållsel
5 557 kr/år
Vatten/avlopp
7 418 kr/år
Sotning
500 kr/år
Renhållning
3 016 kr/år
Försäkring
5 624 kr/år
Summa
38 407 kr/år
(fastighetsavgift/skatt på 10 425 kr tillkommer)
Tillgångar
Typkod
220, Småhusenhet, bebyggd
Byggnadsvärde
2 983 000 kr
Markvärde
1 193 000 kr
Summa taxeringsvärde
4 176 000 kr (fastställt avseende år 2024)

Energideklaration

Status
Genomförd (2024-08-15)
Prestanda
86 kWh/m2 och år
Energiklass
B

Karta