Skövde

Gröna vägen 101

Palmer och medelhavsklimat är en dröm för många men en svår ekvation i Sverige golfströmmen till trots. Om man inte bor på Bovieran vill säga, där den stora inglasade vinterträdgården ger ett behagligt klimat större delen av året. Här finns en trädgård utöver det vanliga som varvas med diverse uteplatser, fiskdammar, boulebana, social gemenskap och ett behagligt klimat året om. Ett perfekt boende för dig över 55 år som värdesätter hög livskvalitet och social samvaro. Lägenheten som nu säljs är en tvårumslägenhet om 64 kvm och bjuder på en modern standard med helkaklat badrum, kök och vardagsrum i öppen planlösning. Utöver den gemensamma trädgården finns här också en egen balkong i södeläge med utsikt över grönskande naturområden och kohagar.

Snabbfakta

Typ Lägenhet
Rum 2 rok
Boarea 63.5 kvm
Månadsavgift 5 352 kr/mån
Byggår 2017
Mer fakta
Utgångspris
1 650 000 kr

Visning

10 Mars
Kontakta mäklaren för enskild tidsbokad visning
Ansvarig mäklare

Daniel Widmark

Fastighetsmäklare
0500-480270 [email protected]

Trädgård

Den fantastiska vinterträdgården ger verkligen detta boende en ytterligare dimension. Ett klimat som påminner om medelhavet är inte svårt att trivas med och det inbjuder till ett socialt umgänge som är svårt att hitta i andra boendeformer.

Trädgård
Trädgård Trädgård Trädgård Trädgård Trädgård Trädgård Trädgård Trädgård Trädgård Trädgård Trädgård Trädgård

Vardagsrum

Vardagsrum med vita väggar och samma trägolv som i övriga lägenheten vilket ger ett enhetligt intryck. Planlösningen är öppen mot köket och utgången till balkongen med den stora fönsterdörren ger en härlig känsla av rymd i lägenheten.

Vardagsrum
Vardagsrum Vardagsrum Vardagsrum Vardagsrum Vardagsrum

Balkong/uteplats

Utöver alla gemensamma uteplatser i vinterträdgården finns även en egen uteplats utanför ytterdörren. Och under den varmare delen av året finns en fin balkong i soligt söderläge att njuta av med utiskt över den vackra närliggande naturen.

Balkong/uteplats
Balkong/uteplats Balkong/uteplats Balkong/uteplats Balkong/uteplats

Kök

Kök som ligger i öppen planlösning med vardagsrummet. Ljust ocgh stilrent kök med sedvanliga vitvaror som kyl/frys, diskmaskin, ugn, inbyggd mikro och spisfläkt. Matplats för upp till 6 personer.

Kök
Kök Kök Kök

Badrum

Helkaklat badrum i stilrent utförande med underliggande golvvärme som ger ett behagligt golv att kliva runt på. Badrumet dubblerar även som tvättstuga och har både en tvättmaskin och torktumlare installerat.

Badrum Badrum

Sovrum

Rymligt sovrum med plats för både en dubbelsäng och bra förvaring med en stor garderob som löper utmed ena väggen i rummet.

Sovrum

Hall

Välkommen in i hallen och denna trivsamma tvårumslägenhet. Avhängning görs enkelt med både hatthylla och garderob direkt till vänster.

Hall Hall

Omgivning

Belägen naturskönt i utkanten av Hentorp har du det bästa av flera världar. Nära till kommunikationer och promenadavstånd till närservice som vårdcentral och närlivs men också vackra naturområden, och golfbana inpå knuten.

Omgivning
Omgivning Omgivning Omgivning Omgivning Omgivning Omgivning Omgivning

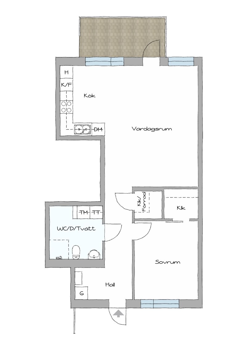
Planritning

Fakta

Bostaden

Boarea
63.5 kvm
Antal rum
2 rum
Areakälla
föreningens information
Upplåtelseform
Bostadsrätt
Bostadstyp
Lägenhet
Våningsplan
2 av 3. Hiss finns.

Byggnad

Byggnadstyp
Flerfamiljshus
Byggnadsår
2017
Ventilation
Mekanisk, typ FTX
Uppvärmning
Fjärrvärme

Balkong, uteplats och bilplats

Balkong
Ja
Uteplats
Ja

Ekonomi

Pris
1 650 000 kr
Månadsavgift
5 352 kr/mån
Månadsavgiften inkluderar, värme, VA, kabel-TV, Bredband tillkommer med ett tillägg om 174kr samt el om ca 210kr
Andel i föreningen
1.65524%
Andel av årsavgift
1.6552%
Nettoskuld
651 299 kr
Kommentar nettoskuld
Uträkningen är baserad på uppgifter hämtade ur årsredovisningen från 2023

Föreningen

Föreningsnamn
Brf Bovieran Skövde
Organisationsform
Bostadsratt
Org.nummer
769623-4330
Gatuadress
Gröna vägen 101
Postadress
54154 Skövde
Äkta/oäkta förening?
Äkta
Allmänt om föreningen

Bovieran är ett boende för den som är 55 år och äldre och kombinerar trygghet med en stark gemenskapsskapande atmosfär. Centralpunkten i detta unika boende är den temperaturreglerade vinterträdgården, inspirerad av Franska Rivieran, fylld med exotiska palmer och växter som bidrar till en harmonisk atmosfär. Under vintern justeras temperaturen till minst 10 grader för att ge växterna en vilotid. Skötseln av denna lummiga oas är inkluderad i månadsavgiften, vilket garanterar ett bekymmersfritt boende med medelhavskänsla.
Antal lägenheter
48 st
Parkering
Föreningen har 60 st p-platser försedda med motorvärmaruttag. P-plats utan tillgång till el kostar 250 kr/månad, p-plats med tillgång till el kostar 300 kr/mån. Föreningen har även 8 platser med tillgång till laddstolpe. En sådan plats kostar 400 kr/månad plus att elen debiteras separat.
TV/bredband
Samtliga lägenheter är anslutna till Telia Triple Play. Denna tjänst är ett tillägg på månadsavgiften om 174 kr/mån och ger TV-kanaler, internet (hastighet 250/250) och IP-telefoni.
Överlåtelseavgift
1433 kr (betalas av Säljare)
Pantsättningsavgift
573 kr
Fast.beteckning
Skövde Alvakällan 1

Energideklaration

Status
Genomförd (2019-01-24)
Energiklass
E

Dokument

Karta