Skövde

Lars Olofs gata 1C

Välkommen till en trivsam tvåa högst upp i huset med balkong i västerläge och ett bekvämt läge nära centrum, matbutiker, resecentrum och högskolan. Lägenheten erbjuder en välplanerad planlösning med ljust kök, luftigt vardagsrum med stora fönsterpartier, rofyllt sovrum med utgång till balkong samt ett praktiskt badrum. Här bor du i en välskött förening med närhet till det mesta som hör vardagen till.

Snabbfakta

Typ Lägenhet
Rum 2 rok
Boarea 63 kvm
Månadsavgift 4 547 kr/mån
Byggår 1969
Mer fakta
Utgångspris
1 385 000 kr

Visning

Kontakta mäklare för bokning av visning.
Ansvarig mäklare

Daniel Widmark

Fastighetsmäklare
0500-480270 [email protected]

Vardagsrum

Vardagsrummet är ett luftigt och väl tilltaget rum med gott om plats för både matdel och soffgrupp. De stora fönsterpartierna ger fint ljusinsläpp, och utsikten mot den äldre bebyggelsen på andra sidan bidrar till rummets trivsamma karaktär. Här finns ytor som fungerar lika bra för umgänge som för en lugn stund hemma.

Vardagsrum
Vardagsrum Vardagsrum Vardagsrum Vardagsrum Vardagsrum Vardagsrum Vardagsrum Vardagsrum Vardagsrum

Hall

En välkomnande hall med bra förvaring och materialval som knyter ihop bostaden på ett fint sätt. Stengolv vid entrén övergår i furugolv som fortsätter vidare genom stora delar av lägenheten.

Hall
Hall Hall Hall Hall

Kök

Ljust och välhållet kök med bra arbetsytor, generös förvaring, diskmaskin och plats för matgrupp vid fönstret. Den ljusa inredningen ger köket en trivsam och funktionell känsla för både vardag och måltider.

Kök
Kök Kök Kök Kök Kök Kök Kök

Badrum

Välskött badrum med kaklade väggar, våtrumsmatta, badkar, wc och handfat. Här finns även en ny tvättmaskin från 2026, vilket bidrar till en praktisk och lättskött vardag.

Badrum
Badrum Badrum Badrum Badrum

Sovrum

Sovrummet har en lugn och ombonad känsla med plats för dubbelsäng och förvaring. Ett trivsamt rum med bra förutsättningar för en rofylld och avskild del av bostaden.

Sovrum
Sovrum Sovrum Sovrum Sovrum

Balkong

Balkongen nås från sovrummet och ligger i västerläge, vilket ger möjlighet att ta vara på eftermiddags- och kvällssolen. Ett trevligt extra utrymme med plats för enklare möblering och avkoppling som dessutom förlänger utesäsongen betydligt med tidig vår och sen höst.

Balkong
Balkong Balkong Balkong

Huset

Centralt och bekvämt läge med närhet till centrum, resecentrum, högskolan och det mesta av vardagens service. Här bor du i en välskött förening med ett luftigt läge och öppna vyer över omgivningarna, samtidigt som stadens utbud finns precis runt hörnet.

Huset
Huset Huset Huset Huset

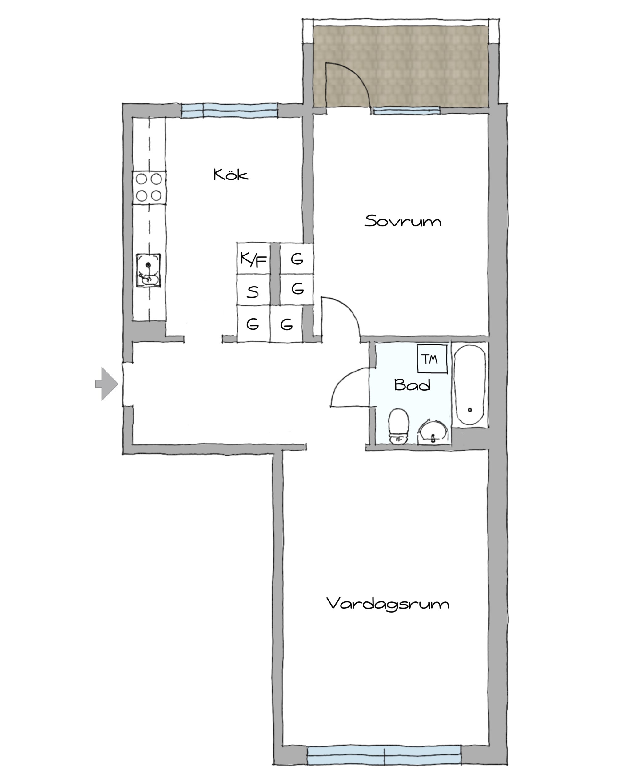
Planritning

Fakta

Bostaden

Boarea
63 kvm
Antal rum
2 rum
Areakälla
föreningens information
Upplåtelseform
Bostadsrätt
Bostadstyp
Lägenhet
Bredband
1000/1000 ingår
Våningsplan
3 av 3. Hiss finns ej.

Byggnad

Byggnadstyp
Flerfamiljshus
Byggnadsår
1969
Uppvärmning
Fjärrvärme

Balkong, uteplats och bilplats

Balkong
Ja

Ekonomi

Pris
1 385 000 kr
Månadsavgift
4 547 kr/mån
Andel av årsavgift
0.5338%
Nettoskuld
125 185 kr
Kommentar nettoskuld
Uträkningen är baserad på uppgifter hämtade ur årsredovisningen från 2024

Föreningen

Föreningsnamn
HSB BRF Ostronet
Organisationsform
Bostadsratt
Org.nummer
766600-0901
Gatuadress
Gransikagatan 6
Postadress
54950 Skövde
Föreningens ekonomi
Inga planerada avgiftsändringar
Äkta/oäkta förening?
Äkta
Allmänt om föreningen
Föreningens fastighet Ostronet 12-16 är belägen på adresserna Gransikagatan 4, 6, 8, 10 och Sveagatan 8 samt Lars Olofs gata 1, 3, 9. Husen färdigställdes år 1969 till en sammanlagd produktionskostnad av 13 203 000 kronor. Den totala bostadsytan uppgår till 12 002 kvm.

Föreningens bostäder fördelar sig enligt följande:
RoK Antal
1 6
2 74
3 71
4 16
Totalt 167
Antal lägenheter
167 st
Antal lokaler
5 st
Renoveringar
Planerade åtgärder kommande fem åren:
- Beskärning av 60-talet av föreningens träd
- Låssystem lägenheter
- Passagesystem entrédörrar och garageportar
- Bokningssystem tvättstugor, gästlägenhet, föreningslokal och bastu
- Värmekulvert
- Asfaltering

Utförda åtgärder:
2025 - Relining av källaravlopp och yttre ledningar till tomtgräns
2025 - Avfall, anpassningar inför nya regler för förpackningsinsamlingen
2024 - 10 bilplatser för elbilsladdning installerades
2024 - Skyddsrummen (3 st) är uppdaterade med ny utrustning
2023 - Nya balkonger med inglasning
2023 - Källsortering av avfall infördes
2023 - IMD (Individuell Mätning och Debitering) av el infördes
2022 - Takbesiktning - takpappen är lagd 2013 - bedöms hålla i ca 10 år till
2021 - Ny belysning i övre garaget
2021 - Fiber installerades i alla lägenheter
2020 - Ny lekplats
2018 - Gästlägenheten renoverades
2016 - Nya kallvattenrör installerades
2015 - Nytt ventilationssystem till affärslokaler
2015 - Nytt sophus
2015 - Ny uteplats med grillar
2014-2019 - Radonåtgärder för att få godkända värden
2014 - Rumsgivare för temperatur installerades i 24 lägenheter
2013 - Nya entrédörrar till trapphusen
2013 - Utomhusbelysning moderniserades
2013 - Ny takpapp på alla hus
2013 - Nya fönster installerades
2012 och 2017 - Rörelsestyrd ledbelysning i trapphus och källare
2012 - Secor säkerhetsdörrar installerades
2010 - Påbyggnad tak parkeringsdäck
2009 - Kommunens avloppsledning (servitut) som ligger i U-området från Sveagatan till Mariestadsvägen relinades
2007 och 2013 - Fasadrenovering
2006 - Postboxar installerades
2006 - Stamrenovering (relining)
Parkering
Det finns parkeringsgarage i två plan med 136 bilplatser. Utomhus finns 27 förhyrda parkeringsplatser, samtliga under tak. Utöver detta finns besöksparkeringar. Beroende på plats ligger avgifterna mellan 250 - 375 kr/mån. För elbilsladdplats tillkommer el med 2,50 kr/kwh.
Separat kö gäller för både garage och p-platser.
Gemensamma utrymmen
Tvättstugor finns i följande hus, i respektive källare: Gransikagatan 4, 6, 8 och Lars-Olofs Gata 1, 3 och 9.
På området finns en lekplats som renoverades 2020 och en stenlagd uteplats med trädgårdsmöbler och grillar som boende i föreningen får använda. Här finns också bastu, föreningslokal och ett övernattningsrum som kan bokas mot en kostnad av 100 kr/dygn.
TV/bredband
Bredband hos Tele2, bredband 1000/1000 (hastighet 1000 Mbit/s) ingår i månadsavgift. Ingår gör även TV-paket bas.
Överlåtelseavgift
1480 kr (betalas av Säljare)
Pantsättningsavgift
592 kr
Övrigt
För att bli medlem i HSB Brf Ostronet krävs även medlemskap i HSB Norra Götaland. Årsavgiften är 300 kronor per hushåll. I samband med att du blir medlem i HSB betalar du också en andel i HSB:s kooperation på 500 kronor per person. Andelen får du tillbaka om du någon gång väljer att lämna HSB.

Energideklaration

Status
Genomförd (2019-12-02)
Energiklass
D

Dokument

Karta